Continuing our non-stop 10th Ave coverage, plywood is going up around the former cleaners on the corner of W 50th St. The spot, which has been for-rent for at least a year now, is finally seeing some life.

Back in November, “As Is NYC” applied for a liquor license at the spot. The new place is owned by the same person behind Atera, a spot downtown which just last year was awarded two Michelin stars, so they know their stuff.
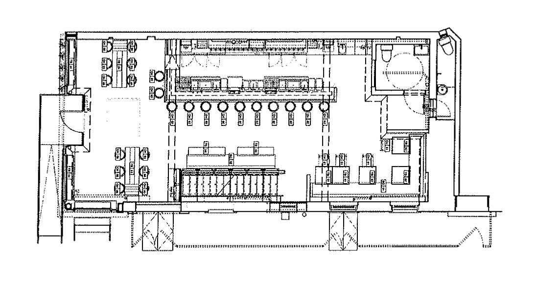
Some architectural diagrams of the future exterior:
Some details from the application: it’ll be a 40-seat restaurant plus bar, and open till 1am weeknights, 2am weekends. If you’re curious, you can check out the application itself, which has an “example menu”…which includes ice cream sandwiches!